立式全自動自清洗過濾器DN125華豫供應
來源:立式全自動自清洗過濾器DN125華豫供應 瀏覽次數:234次 發布時間:2015-07-30 16:46:48

產品選型
為了能更適應您的水系統技術要求以及最佳的過濾效果,達到省水、省電、節能、環保的要求,在選擇自清洗過濾器的時候,請您考慮以下幾個參數:
1、處理流量
2、過濾精度
3、管道壓力
3、過濾介質的化學性質
4、過濾介質的懸浮物濃度
自清洗過濾器過濾精度對照表
| 微米(μm) | 10 | 25 | 30 | 40 | 50 | 80 | 100 | 120 | 150 | 200 | 400 | 800 | 1500 | 3000 |
| 目數 | 1500 | 650 | 550 | 400 | 300 | 200 | 150 | 120 | 100 | 80 | 40 | 20 | 10 | 5 |

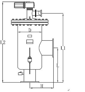
電動刷式自清洗過濾器SL系列技術數據表
| 型號 |
進出口 (mm) |
L (mm) |
L1 (mm) |
L2 (mm) |
H (mm) |
D (mm) |
排污口 (mm) |
流量 (m3/h) |
重量 (Kg) |
| HYJT-80 | 80 | 500 | 1040 | 1270 | 317 | 273 | 40 | 50 | 148 |
| HYJT-100 | 100 | 520 | 1040 | 1270 | 317 | 273 | 40 | 80 | 151 |
| HYJT-125 | 125 | 540 | 1090 | 1320 | 342 | 325 | 40 | 105 | 255 |
| HYJT-150 | 150 | 560 | 1090 | 1320 | 342 | 325 | 40 |
, 150 |
260 |
| HYJT-200 | 200 | 460 | 1100 | 1330 | 354 | 378 | 50 | 320 | 315 |
| HYJT-250 | 250 | 700 | 1340 | 1570 | 463 | 426 | 50 | 450 | 445 |
| HYJT-300 | 300 | 800 | 1490 | 1720 | 565 | 530 | 50 | 600 | 495 |
| HYJT-350 | 350 | 900 | 1640 | 1870 | 665 | 630 | 50 | 850 | 570 |
| HYJT-400 | 400 | 1000 | 1790 | 2020 | 720 | 760 | 80 | 1200 | 645 |
| 備注:此數據僅供參考,以實物為準,如有更改,恕不另行通知 | |||||||||
電動刷式自清洗過濾器 HYJT系列過濾器材質
■殼 體:碳鋼、304不銹鋼、316L不銹鋼
■濾 網:304不銹鋼、316L不銹鋼
■清洗刷:不銹鋼、尼龍
■排污閥:鑄鐵、銅、不銹鋼
■控制器:PVC、鋁
■密封圈:EPDM橡膠
注:可根據客戶要求訂制其他特殊材質,具體情況請咨詢本公司。
設備安裝與連接
(1)安裝使用時,應注意對控制箱、傳感器及傳動部分的保護,防止損壞。
(2)按照自清洗過濾器本體上的箭頭提示方向連接管道,使水流方向與本體上的箭頭方身一致。SL系列自清洗過濾器有兩種安裝形式(見下圖),采取任何一種安裝形式時,應注意使自動排污閥的出口方向為水平或向下,以保證排污更徹底。
(3)自清洗過濾器應安裝在需要保護的用水設備之前,并盡量靠近用水設備。
(4)在動力系統中,自清洗過濾器應安裝在水泵與用水設備之間,越靠近用水設備越好。當泵與用水設備之前的壓力超過過濾器的極限壓力,自清洗過濾器也可安裝在水泵之前,并盡量靠近水泵。
(5)自動排污閥連接方式分為法蘭和絲扣,排污管不宜過長,最好不要超過10米。
(6)安裝時應考慮便于檢修,自清洗過濾器前后應安裝關斷閥門,且應安裝旁通管道。
(7)自清洗過濾器的規格應與管道或流量相匹配,當一臺單臺過濾器不能滿足系統流量要求時可并聯兩臺或更多,以達到系統過濾要求。
產品選型
為了能更適應您的水系統技術要求以及最佳的過濾效果,達到省水、省電、節能、環保的要求,在選擇自清洗過濾器的時候,請您考慮以下幾個參數:
1、處理流量
2、過濾精度
3、管道壓力
3、過濾介質的化學性質
4、過濾介質的懸浮物濃度
聯系人:王經理
聯系方式:0373-2678253 15090471838
Q Q: 2206397446
傳真:0373-3809898
郵箱:wcc@huayufilter.com
地址:新鄉市牧野區小里工業園71號
(責任編輯:立式全自動自清洗過濾器DN125華豫供應 )
- News
- 供應P173789濾芯濾清器2015-07-30 16:46:48
- 供應CR-125濾芯2015-07-30 16:46:48
- P163567液壓旋裝濾濾芯2015-07-30 16:46:48
- 現貨供應P164375濾芯2015-07-30 16:46:48
- Products
- 供應濾芯P1635422015-07-30 16:46:48
- UE319AP20H/CN1301...2015-07-30 16:46:48
- GGL-2水樣過濾器2015-07-30 16:46:48
- SLAF-8HC/A杭州山立精密...2015-07-30 16:46:48




豫公網安備 41071102000494號